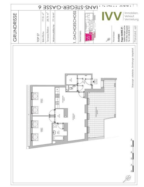
Unbefristete 3-Zimmer-Terrassen-Wohnung Hans-Steger-Gasse 6w27
1220 WienObjekt-Nr. 22740
Beschreibung
inkl. Betriebskosten und MwSt.Verfügbar
Ich interessiere mich für diese Immobilie
Ausstattung
- Möbliert
- Teilmöbliert
- Bauweise
- Massiv
- Etagenzahl gesamt
- 5
- Fahrstuhl
- Personenaufzug
- Boden
- Fliesen, Parkett
- Bad
- Wanne
- Wasch-/Trockenraum
- Ja
- Fahrradraum
- Ja
- Terrasse
- Ja
- Befeuerung
- Gas, Fernwärme
- Heizungsart
- Zentralheizung
Details
- Gesamtkosten
- € 1.097,50
- Miete (Netto)
- € 867,00
- Betriebskosten (Netto)
- € 130,73
- Summe MwSt.
- € 99,77
- Kaution
- 3 Bruttomieten
- Provision
- Gemäß Erstauftraggeberprinzip bezahlt der Abgeber die Provision.
- Baujahr
- 2017
- Art der Immobilie
- Wohnung
- Liegenschaftenstatus
- Miete
- Mind. Mietdauer
- 16 Monate
- Max. Mietdauer
- unbefristet
- Verfügbar ab
- In 3 Wochen
Energieausweis
- HWB
- 55,4 kWh/m²a
- HWB Klasse
- C
- fGEE
- 0.00