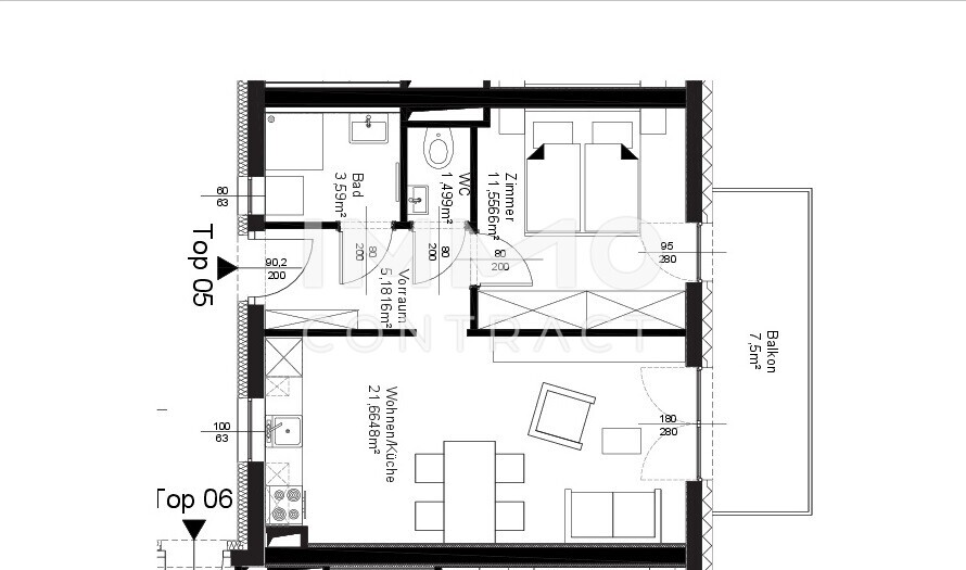
2 Zimmer Wohnung mit Balkon - Augasse 94 - Top 5
8051 GrazObjekt-Nr. 124098_61
Beschreibung
inkl. Betriebskosten und MwSt.Verfügbar
Ich interessiere mich für diese Immobilie
Ausstattung
- Etagenzahl gesamt
- 6
- Fahrstuhl
- Personenaufzug
- Boden
- Fertigparkett, Fliesen
- Küche
- Küche (möbliert)
- Bad
- Dusche
- Fahrradraum
- Ja
- Balkon
- Ja
- Befeuerung
- Fernwärme
- Heizungsart
- Zentralheizung
Details
- Gesamtkosten
- € 571,93
- Miete (Netto)
- € 436,41
- Betriebskosten (Netto)
- € 83,53
- Summe MwSt.
- € 51,99
- Kaution
- 3 Bruttomonatsmieten
- Provision
- Gemäß Erstauftraggeberprinzip bezahlt der Abgeber die Provision.
- Baujahr
- 2023
- Art der Immobilie
- Wohnung
- Liegenschaftenstatus
- Miete
- Verfügbar ab
- Ab sofort
Energieausweis
- HWB
- 43,3 kWh/m²a
- HWB Klasse
- B
- fGEE
- 0.75
- fGEE Klasse
- A