Sonnenpenthouse mit 90m2 Terrasse und Ausblick: Provisionsfrei - Wohnung + Büro mit luxuriöser Ausstattung
1100 Wien, FavoritenObjekt-Nr. 125896_40
Beschreibung
Provisionsfrei!Verfügbar
Ich interessiere mich für diese Immobilie
Ausstattung
- Etagenzahl gesamt
- 6
- Bad
- Dusche
- Gäste WC
- Ja
- Fahrradraum
- Ja
- Dachterrasse
- Ja
- Balkon
- Ja
- Klimatisiert
- Ja
Downloads
Details
- Kaufpreis
- € 1.210.000,00
- Provision
- Provisionsfrei
- Baujahr
- 2024
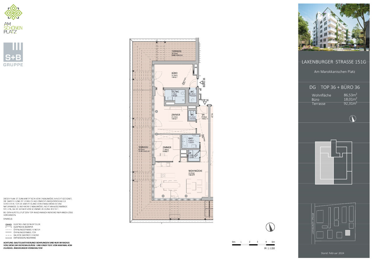
- Terrassenfläche
- 92,31 m²
- Art der Immobilie
- Wohnung
- Liegenschaftenstatus
- Kauf
- Verfügbar ab
- Sofort
Energieausweis
- HWB
- 19,31 kWh/m²a
- HWB Klasse
- A
- fGEE
- 0.68
- fGEE Klasse
- A+