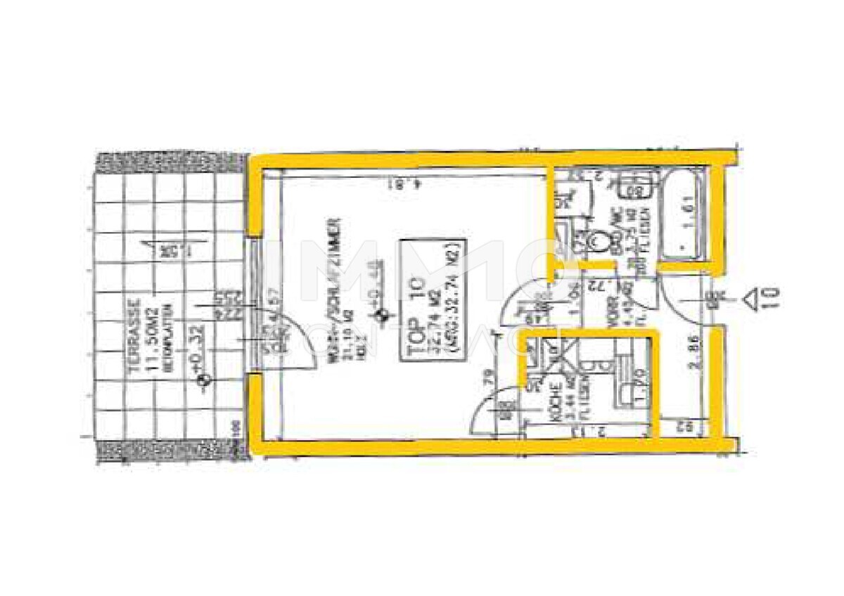
1- Zimmer Wohnung mit Terrasse | Kalvarienbergstraße 134 Top 10
8020 Graz,04.Bez.:LendObjekt-Nr. 132849
Beschreibung
inkl. Betriebskosten und MwSt.Verfügbar
Ich interessiere mich für diese Immobilie
Ausstattung
- Boden
- Parkett
- Küche
- Küche (möbliert)
- Bad
- Wanne
- Terrasse
- Ja
- Befeuerung
- Gas
- Heizungsart
- Zentralheizung
Details
- Gesamtkosten
- € 569,60
- Miete (Netto)
- € 372,81
- Betriebskosten (Netto)
- € 81,99
- Summe MwSt.
- € 57,03
- Heizkosten (inkl. MwSt.)
- € 69,32
- Kaution
- 3 Bruttomonatsmieten
- Provision
- Gemäß Erstauftraggeberprinzip bezahlt der Abgeber die Provision.
- Art der Immobilie
- Wohnung
- Liegenschaftenstatus
- Miete
Energieausweis
- HWB
- 69,5 kWh/m²a
- HWB Klasse
- C
- fGEE
- 1.37
- fGEE Klasse
- C