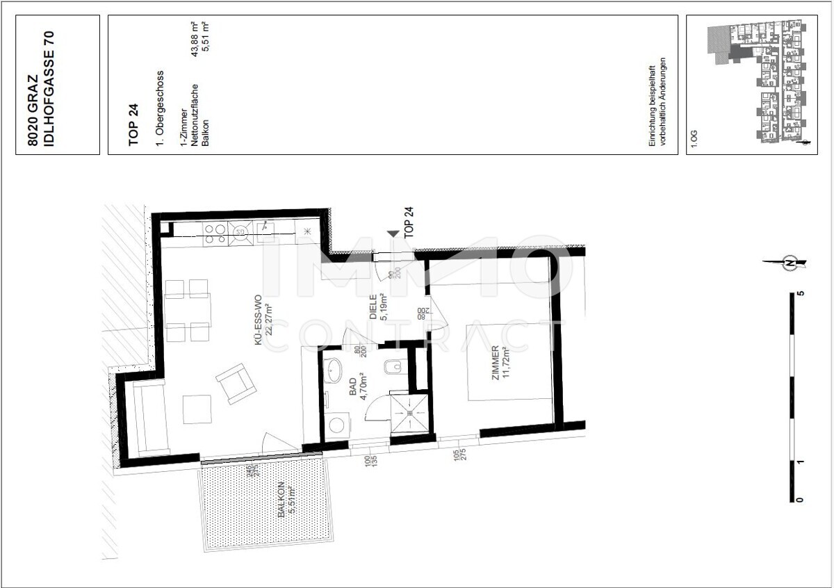
Neuwertige - geförderte 2 Zimmer Wohnung mit Balkon in zentraler Lage - Idlhofgasse 70 - Top 24
8020 GrazObjekt-Nr. 123652_200
Beschreibung
inkl. Betriebskosten und MwSt.Verfügbar
Ich interessiere mich für diese Immobilie
Ausstattung
- Bauweise
- Massiv
- Etagenzahl gesamt
- 6
- Boden
- Fliesen, Parkett
- Küche
- Küche (möbliert)
- Bad
- Dusche
- Fahrradraum
- Ja
- Balkon
- Ja
- Befeuerung
- Fernwärme
- Heizungsart
- Zentralheizung, Fußbodenheizung
Details
- Gesamtkosten
- € 631,58
- Miete (Netto)
- € 439,92
- Betriebskosten (Netto)
- € 91,75
- Summe MwSt.
- € 60,96
- Heizkosten (inkl. MwSt.)
- € 46,74
- Kaution
- 3 Bruttomonatsmieten
- Provision
- Gemäß Erstauftraggeberprinzip bezahlt der Abgeber die Provision.
- Baujahr
- 2023
- Art der Immobilie
- Wohnung
- Liegenschaftenstatus
- Miete
- Mind. Mietdauer
- 12 Monate
- Verfügbar ab
- Kurzfristig
Energieausweis
- HWB
- 30,92 kWh/m²a
- HWB Klasse
- B
- fGEE
- 0.75
- fGEE Klasse
- A