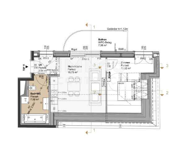
2 Zimmer DG-Wohnung mit Freifläche direkt am Nachmarkt

1040 Wien
Objekt-Nr. 130492_39
  • 1
  • 4
  • 2
  • 8
  • 7
  • 6
  • 5
  • 3
  • 9
  • 10