2326 Lanzendorf
Objekt-Nr. 130295_22
  • Rendering 1
  • Lanzendorf Stryc-20210719_ShotCam_03_GartenPerspektive (1)
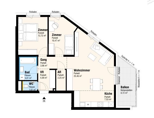
  • Top26
  • Auszug Energieausweis