Beschreibung
Nur kurze Zeit:
Kaufen Sie jetzt zum Kaufpreis "belagsfertig" und erhalten Sie die schlüsselfertige Endausstattung!
Baubeginn 2025 - Einziehen vor Weihnachten 2026
Willkommen im Wohnpark Mühlleiten – Ihrem neuen Zuhause zwischen Natur und Stadt
Träumen Sie von einem Zuhause, das Naturverbundenheit und Stadtnähe perfekt kombiniert? Im Wohnpark Mühlleiten finden Sie nicht nur moderne Architektur, sondern auch eine nachhaltige Bauweise, die auf die Bedürfnisse Ihrer Familie abgestimmt ist.
Insgesamt entstehen hier 14 Doppel- und Reihenhäuser in hochwertiger VARIO-Fertigteilhaus-Bauweise.
Die durchdachten Einheiten vereinen modernes Design mit ökologischen Bauweise und bieten eine stabile Grundlage für eine nachhaltige Zukunft. Dank der energieeffizienten Bauweise sparen Sie nicht nur langfristig Energiekosten, sondern genießen auch an kalten Tagen ein gemütliches Wohnklima.
Auf Wunsch werden die Hauser auch in Massivbauweise erreichtet - gerne geben wir bei näherem Interesse die entsprechenden Kosten bekannt.
Die durchdachte Ausrichtung aller Häuser sorgt dafür, dass Ihre Wohnräume stets von natürlichem Licht erfüllt sind - rein nordseitige Räume gibt es nicht – stattdessen erwarten Sie freundliche und helle Wohnbereiche.
Mit Wohnflächen von 88 m² bis 129 m² haben Sie die Wahl zwischen kompakten und großzügigen Grundrissen. 3, 4 oder 5 Zimmer – hier findet jede Familie ihr ideales Zuhause.
• Erdgeschoss: Die einladende Wohnküche bildet den Mittelpunkt Ihres Zuhauses. Von hier aus gelangen Sie direkt auf die Terrasse und in den privaten Garten, der reichlich Platz zum Spielen, Entspannen oder Gärtnern bietet. Ein Abstellraum, ein Gäste-WC und – je nach Größe – ein zusätzlicher Arbeits- oder Schlafraum runden das Erdgeschoss ab.
• Obergeschoss: Hier befinden sich die Schlafzimmer sowie ein modernes Badezimmer mit WC – perfekt für Privatsphäre und Ruhe.
Die Häuser werden nun schlüsselfertig übergeben.
Jedes Haus verfügt zusätzlich über zwei eigene PKW-Stellplätze.
Im Wohnpark Mühlleiten verbinden sich naturnahes Wohnen, moderne Architektur und nachhaltige Bauweise zu einem einzigartigen Wohngefühl – nur einen Steinwurf von Wien entfernt. Erfüllen Sie sich jetzt Ihren Traum vom perfekten Zuhause!
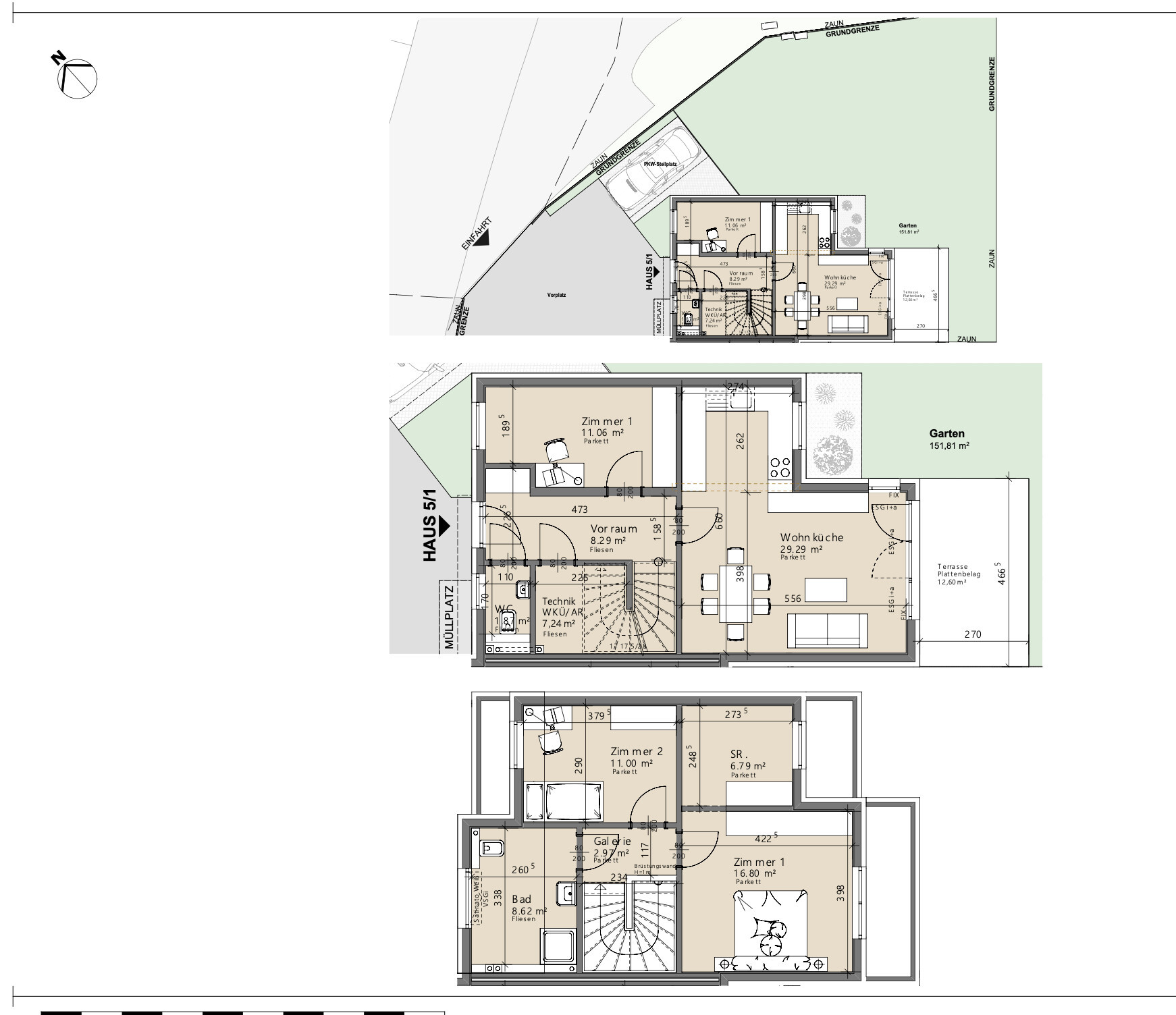
Eckhaus 5/1
hat eine Wohnfläche von ca. 103,93 m2 aufgeteilt auf zwei Etagen:
Erdgeschoss: Vorraum, Wohnküche mit Ausgang auf die Terrasse, Gästezimmer, Abstellraum mit Haustechnik, Gäste-WC.
Obergeschoß: ein großes Schlafzimmer, Schrankraum, ein Kinderzimmer, sowie Badezimmer mit WC.
Der Garten ist ostseitig ausgerichtet - hier können Sie bereits morgens die Sonne genießen.